新聞動態
公司動態
- 2025年11月20-22日 本地“...
- 上海到底有誰在啊?10月28-3...
- 漢達參展日記之武漢篇:見證...
- 來嘍來嘍,10月24-26日平湖...
- 中秋遇國慶,家國兩團圓丨go...
- 三八出逃計劃:野外撒歡,燃燒...
聯系我們
浙江漢達機械有限公司
電話:0578-3555444 3152944
傳真:0578-3152335
客戶紀實
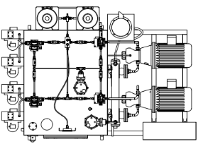
冶金工程液壓站液壓系統的老化改造,冶金機械煥然一新
17年開始接觸給客人,主要是服務鋼廠的,陸陸續續有些小單在合作著。19年1月聯系我們,鋼廠的一臺冶金設備上的液壓系統老化,需要更新,提供了液壓系統的原理圖和對應的實物照片給我們,說只要價格差得不多,只找我們,質量放心。

漢力達液壓的技術人員查看了資料后,發現原理圖和實物有出入,經過與客人的溝通,因為客人對液壓行業不是非常精通,他也沒法確認。我們決定結合原理圖和實物,形成我們的推測方案,然后先做初步的方案和報價。客人收到價格和基本配置后,馬上報給了鋼廠,初步溝通后,已形成合同意向。2月份,我們與客人簽訂了合同,并附上初步的方案、配置。客人安排了定金,收到定金后,營銷中心馬上下單給技術部,技術人員去現場,對照原理圖進行實地校驗,并且與鋼廠技術人員做深度溝通,對原理圖進行修正。漢力達液壓技術人員返廠時,我們也拿到了鋼廠修正后的原理圖,技術部重新出具了方案和具體配置表,并出了液壓站外形三維圖給客人確認。



三維圖確認后,營銷中心把生產任務單正式下達各個部門,采購部、制造部、液壓裝配車間、品質部,各司其職開始為訂單服務。4月份液壓系統進入了最終的裝配、測試階段,我們拍了測試視頻、液壓站的各個角度給客人確認,客人確認后,我們馬上安排包裝發貨事宜。


最終5月初液壓站順利驗收,應用到了鋼廠的冶金設備上。客人表示,幸虧遇到了我們,足夠專業,不然沒有圖紙這些輔助,他夾在中間的溝通工作太多了。
相關文章:》液
客戶評論
發表評論